2025年12月17日
こんにちは。
代表の佐藤哲郎です。
愛知県 K様 ご自宅 小型薪ストーブ納入
2022年、愛知県にお住まいのK様に納入させていただいたDC-Mです。
3年越しになりましたが、先日、設置後のお写真を送ってくださいました。


当時は薪ストーブ本体のみを発送し、煙突施工はK様ご自身で行われました。
設置したお部屋は、奥様が主宰されているピアノ教室の9畳の空間です。
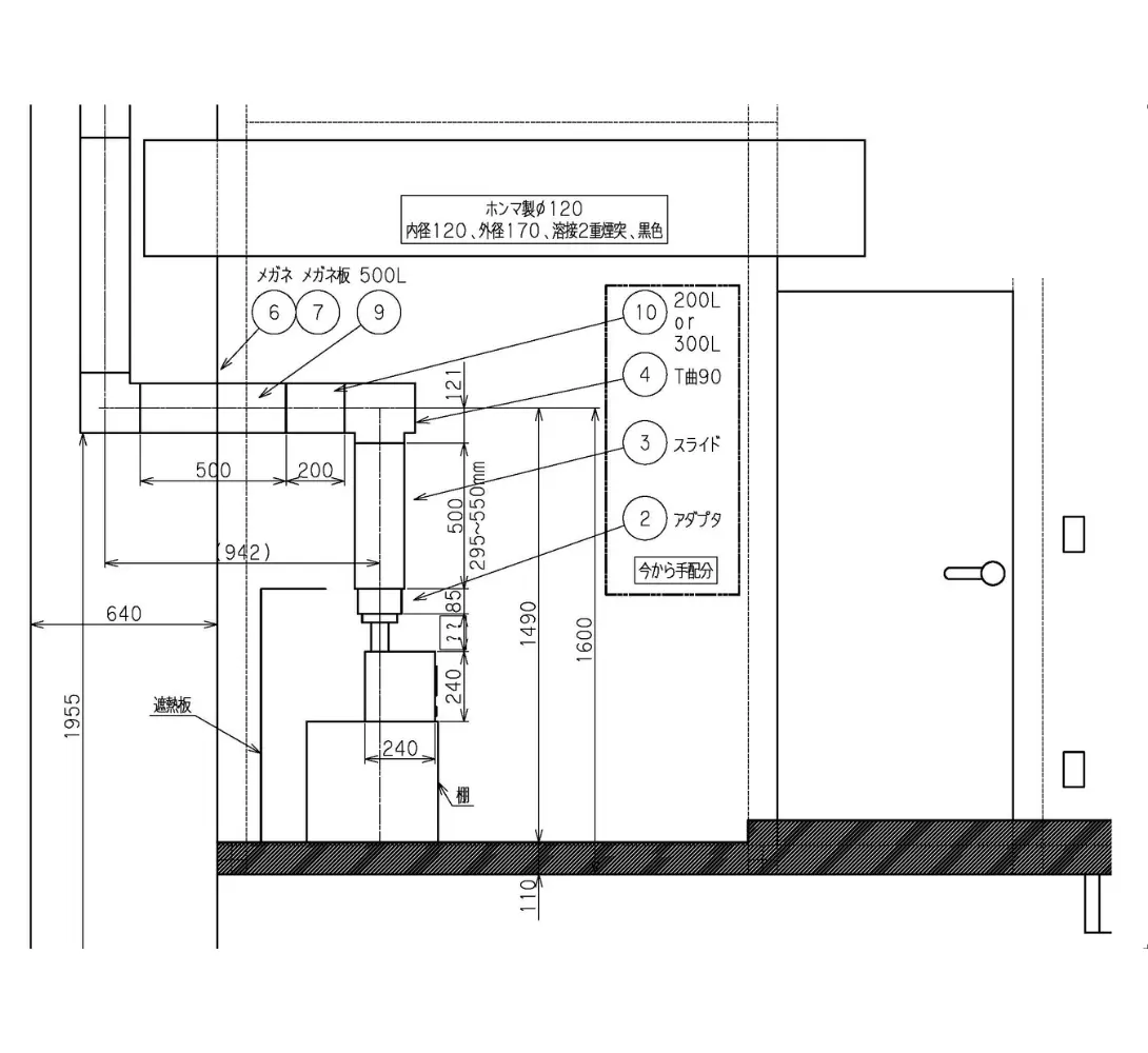
K様は設計のお仕事をされており、設置のための図面もご自身で作成してくださいました。
その図面のおかげで、スムーズにやり取りを進めることができ、大変助かりました。
K様が作成された図面も、ぜひご覧ください。


以下は、K様からいただいたお便りです。
妻のピアノ教室(9畳)の小屋にミニストーブを設置し、小さい生徒さん達も薪ストーブに興味津々ですよ。
なかなか部屋の中で“火”を見ることができないと思うので、設置できてよかったなと思っています。
導入の際は本当にお世話になりました。
K様、どうぞ素敵な薪ストーブライフをご堪能くださいね♪


